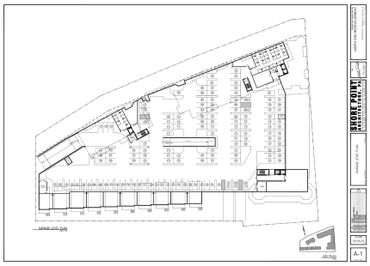
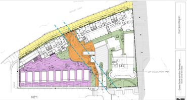
Ocean Grove North End Project is a one of a kind mixed use development. It is located directly on the boardwalk and lakefront in the National Historic District of Ocean Grove, Neptune Township, Monmouth County, New Jersey.
The project was designed around its location, the publics use of the facility, reduced density, parking requirements, view corridors and architectural aesthetics. O.G. North End Development, LLC, worked with the Neptune Township Committee and Planning Board to reduce the allowable density by close to 50%. By reducing the number of condo units from 78 to 39, the number of hotel rooms from 80 to 40, we were able to reduce the footprint and massing of the project while providing open space, view corridors, public access easements and ample off street hidden parking. The design was completed by award winning architects Shore Point Architecture, Janet Foster Victorian Architecture expert, InSite Engineering and Melillo & Bauer award winning Landscape architects.
Neptune Township Committee:
Clerical Amendment to Redevelopment Plan: Pending
Neptune Planning Board:
Final Site Plan Amendment 2 Single Family Home: Pending















1910
- OGCMA builds a mixed use complex including but not limited to: 255 Room Hotel, swimming pool, cabanas, boardwalk retail, movie theater, archery, lake boating and restaurants.
1980
- Hotel and majority of complex razed.
- Property remains essentially vacant till 2023
June 2007
- Neptune Township Committee Designated property to be an area in need of redevelopment.
March 2008
- Redevelopment Plan Ocean Grove North End adopted by Neptune Township Committee
2009
- Neptune Township prevails at Superior Court & NJ Appellate Court defeating a challenge to the Townships adoption of property as an Area In Need Of Redevelopment Designation & Townships adoption of the Redevelopment Plan.
April 2018
- Option Agreement for 99-year Ground Lease executed to OGNED LLC from OGCMA
November 2018
- Neptune Township Committee Designates OGNED LLC as Conditional Redeveloper
September 2019
- Resolution adopted by Neptune Township Committee to authorize Original Redevelopment Agreement
September 2019
- 99-year Ground Lease executed to OGNED LLC from OGCMA
February 2020
- Preliminary and Final Major Site Plan Approval granted by Neptune Township
March 2020
- Initial Architectural Submission to HPC
March 2021
- NJDEP (CAFRA) Permit issued to OGNED LLC
May 2021
- NJDEP (CAFRA) Amended Permit issued to OGNED LLC
October 2022
- OGNED LLC filed writ to NJ Superior Court to compel issuance of COA and simultaneously a writ to Neptune Zoning Officer to issue the COA
- HPC adopted formal resolution denying issuance of COA to OGNED LLC (after multiple technical review meetings, resubmissions, and four public hearings, since March of 2020)
November 2022-November 2023
- Neptune Township and OGNED LLC have a negotiated litigation Settlement Agreement and an Amended & Restated Redevelopment Agreement proposed. Hearings initiated by the Neptune Township Committee for resolutions for settlement and pathway for Amended Redevelopment Plan and Planning Board amended Site Plan resubmission.
February 26, 2024
Neptune Township passed Resolution to Execute Settlement Agreement and Amended Redevelopment Agreement to resolve lawsuit pertaining to alleged failure to issue Certificate of Appropriateness in a timely manner. Neptune Township passed Resolution to refer Amended Redevelopment Plan for consistency.
March 27, 2024
Planning Board Review of & Report on Amended Redevelopment Plan.
April 8, 2024
Township Committee Passed Amended Redevelopment Plan Ordinance.
February 26,2025
See PDF VIEWER Section for comprehensive settlement details.
We use cookies to analyze website traffic and optimize your website experience. By accepting our use of cookies, your data will be aggregated with all other user data.